YXB40-200-800閉口樓承板
YXB40-200-800閉口樓承板提供多種工作平臺,實現立體作業,加快進度,縮短工期,降低綜合成本;強勁的混凝土握裹抗剪(特殊的閉口肋型和腹板上的嵌扣)。
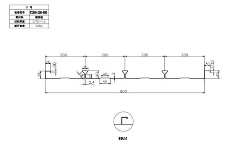
長度:800mm
厚度:1mm
訂購熱線:188-1199-6168
YXB40-200-800閉口樓承板提供多種工作平臺,實現立體作業,加快進度,縮短工期,降低綜合成本;強勁的混凝土握裹抗剪(特殊的閉口肋型和腹板上的嵌扣)。
上一個:YXB42-215-645閉口樓承板 下一個:YXB40-185-740閉口樓承板

一、YXB40-200-800閉口樓承板應用
產品廣泛用于電廠、電力設備公司、汽車展廳、鋼結構廠房、水泥庫房、鋼結構辦公室、機場候機樓、火車站、體育場館、音樂廳、大劇院、大型超市、物流中心、奧運場館體育場館等鋼結構建筑。
適應主體鋼結構快速施工的要求,能夠在短時間內提供堅定的功課平臺,并可采用多個樓層鋪設壓型鋼板,分層澆筑混凝土板的流水施工。
二、YXB40-200-800閉口樓承板主要特點
1:適應主體鋼結構快速施工的要求,能夠在短時間內提供堅定的作業平臺,并可采用多個樓層鋪設壓型鋼板,分層澆筑混凝土板的流水施工。
2:在使用階段樓承板作為混凝土樓板的受拉鋼筋,也提高了樓板的剛度,節省了鋼筋和混凝土的用量。
3:壓型板表面壓紋使樓承板與混凝土之間產生最大的結合力,使二者形成整體,配以加勁肋,使樓承板系統具有高強承載力。
4:在懸臂條件下,樓承板僅作為永久性模板。懸挑的長度可根據樓承板的截面特性來定。為了防止懸挑板的開裂,需在支座處依結構工程師的設計配上負筋。
三、YXB40-200-800閉口樓承板類似規格型號
樓承板分為:開口樓承板、縮口樓承板和閉口樓承板三個品類。
開口樓承板包括:YXB76-305-915、YXB51-305-915、YXB75-200-600、YXB50-250-750、YXB35-125-750;
縮口樓承板包括:YXB51-200-600;
閉口樓承板包括:YXB65-185-555、YXB66-240-720、YXB65-170-510、YXB46-200-600、YXB40-185-740。
四、YXB40-200-800閉口樓承板與普通開口板相比安裝技術優勢
1:閉口樓承板嚴格按照設計鋪板圖在工廠加工,排板順序均已編號,現場施工無需切割和補板,方便于鋼構公司現場安裝。
2:閉口樓承板排板時只需按跨距順排,與鋼梁順接時,由于板底平整,有足夠與鋼梁實接面積。因此不用處理可直接鋪過去(開口板因要避免與鋼梁虛搭而需切割補板)。
3:開口板在端口處應封堵板,以免澆筑混凝土進從板底開口漏漿,而閉口樓承板因腹板閉合而不用端頭堵板。
4:閉口樓承板因板底平整,無論與鋼梁橫搭還是順搭,均能與鋼梁上翼板充分結合,因此鋼梁上翼板頂面無需噴防火涂料。而開口型鋼承板與鋼梁之間具有空洞,需做肩塞補滿空洞。
5:閉口樓承板完全替代下層鋼筋,減少現場鋼筋制作量,可減輕現場勞動量,加快施工速度。同時取消原設計下層鋼筋,可為樓板中鋪設電線套管提供更大空間。
采用閉口樓承板與開口型鋼承板組合樓板相比,可以取消板底防火涂料,完全替代下層鋼筋,并可減薄樓板厚度,節省混凝土用量,閉口樓承板獨特的懸吊系統還可節約機電管道安裝成本。另外由于上述優勢可明顯加快加工速度,縮短工期。因此,采用閉口樓承板一方面可降低工程直接成本,另一方面又可降低工程管道費用。 上一個:YXB42-215-645閉口樓承板 下一個:YXB40-185-740閉口樓承板
